De Zonnewende

Comfortabele mantelzorgwoning met extra ruimte
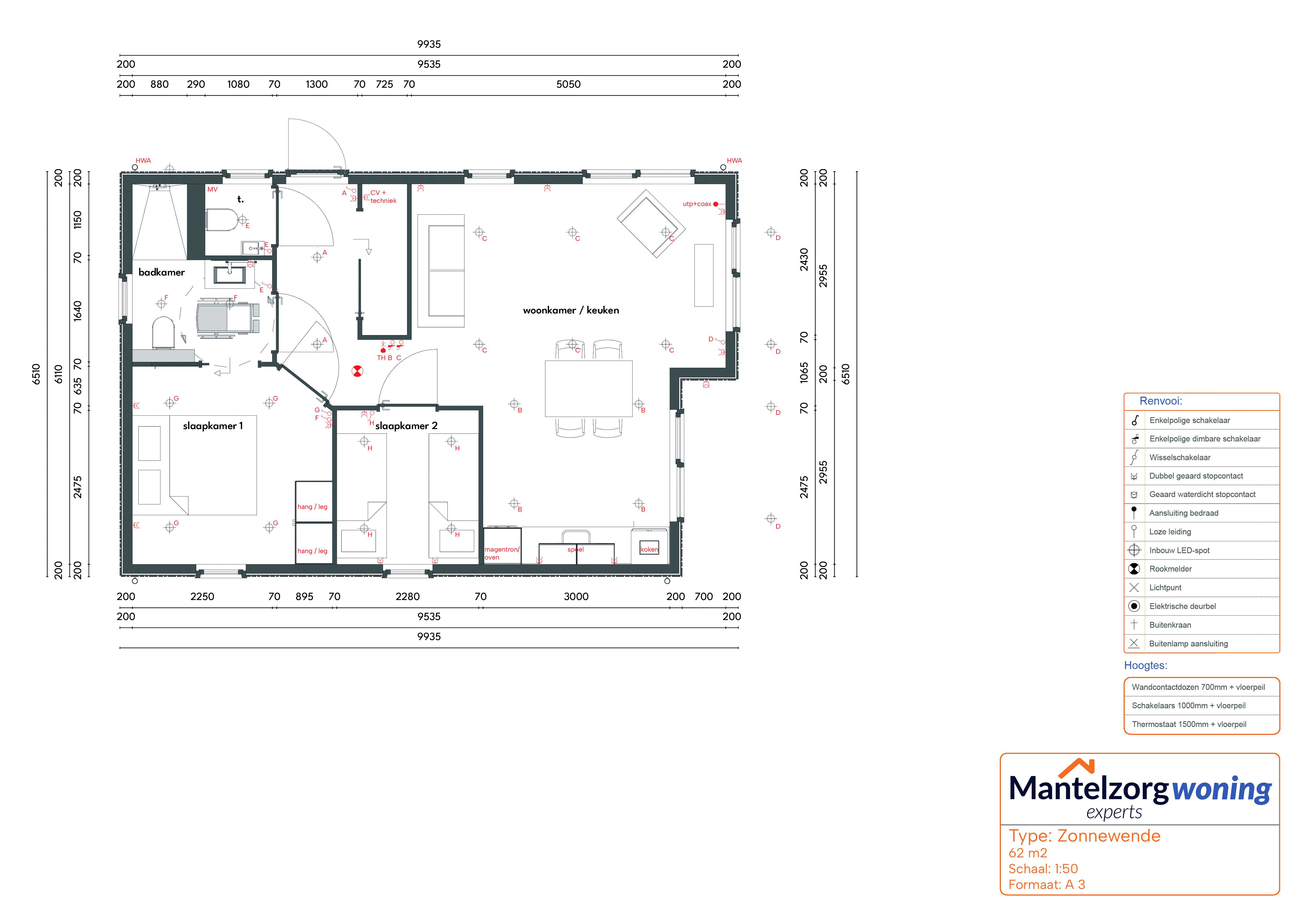
De Zonnewende is onze meest royale mantelzorgwoning, speciaal ontworpen voor wie ruim en comfortabel wil wonen met zorg dichtbij. Deze woning biedt volop leefruimte, zonder concessies te doen aan gemak en toegankelijkheid. Alle voorzieningen bevinden zich op de begane grond, drempelloos en slim ingedeeld. De woonkamer is licht en ruim, de open keuken modern en praktisch. Daarnaast beschikt De Zonnewende over één of twee slaapkamers en een volledig uitgeruste badkamer. Dankzij de efficiënte indeling is deze woning ideaal voor zowel alleenstaanden als stellen die graag zelfstandig willen blijven wonen.
Volledig op maat samen te stellen
Elke Zonnewende wordt op maat gebouwd en ingericht naar uw wensen. U kiest zelf de afwerking, materialen en indeling. Denk aan een PVC-vloer, een stijlvolle veranda of een compleet ingerichte tuin. Ook duurzame extra’s zoals een warmtepomp of zonnepanelen zijn mogelijk. De woning wordt prefab geproduceerd en in korte tijd op locatie geplaatst, volledig woonklaar en zonder overlast. Onze experts begeleiden het hele proces – van eerste ontwerp tot oplevering – zodat u zorgeloos kunt verhuizen naar een plek die echt als thuis voelt.

Zonnewende 62 m2
Slim gebruik van ruimte
Luxe uitstraling
Voorbereid op zorgbehoefte

Zonnewende 80 m2
Slim gebruik van ruimte
Luxe uitstraling
Voorbereid op zorgbehoefte
Royale indeling
Luxe wooncomfort
Ideaal voor samenwonen
Ontvang onze brochure boordevol informatie & inspiratie
Download onze brochure en ontdek alles over onze mantelzorgwoningen: van afmetingen en indelingen tot afwerking, prijzen en plaatsing. Handig voor uzelf of om samen door te nemen met uw naasten. Zo bent u goed voorbereid en weet u precies wat u kunt verwachten.









