De Lelie

Stijlvol wonen in alle rust
De Lelie is een mantelzorgwoning die rust, comfort en overzichtelijkheid samenbrengt. Deze woning biedt precies genoeg ruimte om zelfstandig te wonen, zonder onnodige prikkels. De indeling is slim en overzichtelijk: een gezellige woonkamer, een complete keuken en een ruime slaapkamer zorgen voor een aangename woonbeleving. Alles is gelijkvloers en volledig drempelloos, waardoor u zich veilig en vrij kunt bewegen. De Lelie is perfect voor wie waarde hecht aan comfort én eenvoud in het dagelijks leven.
Persoonlijk ingericht en klaar voor de toekomst
De Lelie is volledig aan te passen aan uw wensen. Of u nu houdt van een moderne, strakke uitstraling of juist een warme en huiselijke sfeer – met de juiste afwerking en indeling maken we van De Lelie een echte thuisbasis. Denk aan een PVC-vloer, sfeervolle verlichting of zelfs een aangelegde tuin. Ook duurzame opties zoals een warmtepomp of zonnepanelen zijn mogelijk. Dankzij de prefab bouwwijze is de plaatsing snel en efficiënt, met minimale overlast. Binnen enkele dagen is uw woning instapklaar en kunt u zorgeloos genieten van uw nieuwe leefomgeving.

De lelie 54 m2
Slim en compact ontwerp
Comfortabel en toegankelijk
Betaalbare instapwoning

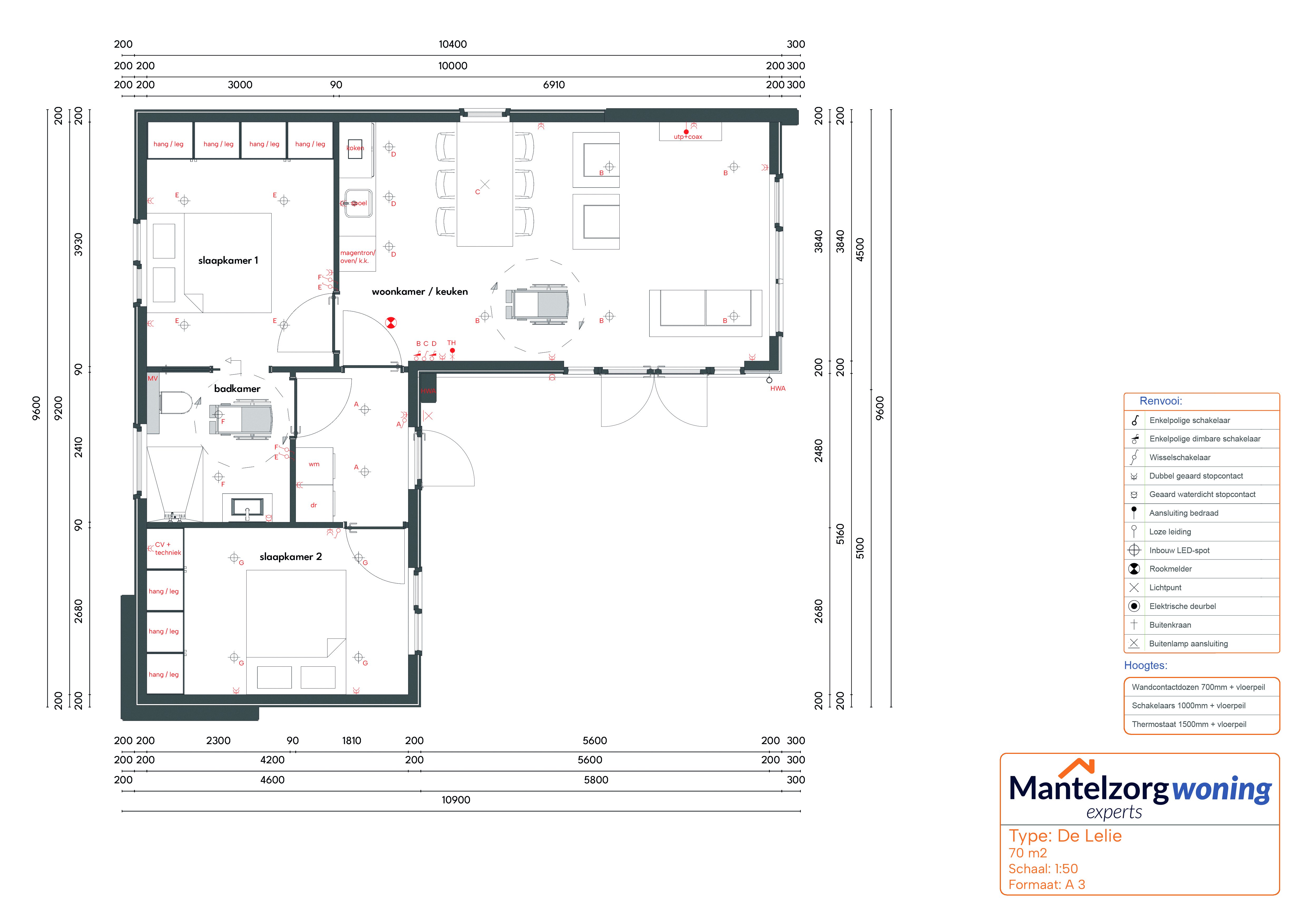
De lelie 70 m2
Ruim en overzichtelijk
Geschikt voor twee personen
Volledig naar wens aan te passen

De lelie 80 m2
Royale leefruimte
Comfortabel en compleet
Flexibel in te richten
Ontvang onze brochure boordevol informatie & inspiratie
Download onze brochure en ontdek alles over onze mantelzorgwoningen: van afmetingen en indelingen tot afwerking, prijzen en plaatsing. Handig voor uzelf of om samen door te nemen met uw naasten. Zo bent u goed voorbereid en weet u precies wat u kunt verwachten.







